
Specifications
Total Sq Ft
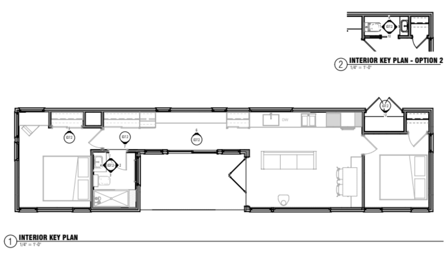
820 sq ft
Bedrooms
2
Bathrooms
1
Sleeps
4
Dimensions
14' x 58.5'
Height: 13.5'
Roof Pitch
4/12
Standard vs. Luxury
Both tiers share the same structural quality. Here’s what changes when you upgrade.
S
Standard$189,000
L
Luxury$219,000
Included in Both Tiers
Standing-seam metal roof
2x4 framing engineered for 150 lbs snow load
Tankless hot water heater
Dishwasher
Built-in bedroom cabinetry
2 outdoor hosebibs
3 outdoor GFCI outlets
Custom Pine and Steel Ladder
Two bedrooms with closets
Expanded kitchen with island
Standard vs. Luxury
StandardLuxury
Blown-in fiberglass batt insulationAir-tight closed cell spray foam insulation
Western windows double-pane low-E glassPella 250 series double-pane low-E glass
Drywall or shiplap walls and ceilingDrywall, shiplap, pine T&G, or plywood paneling
Board and batten smart sidingSteel exterior with cedar accents
High quality vinyl flooringLVP vinyl plank flooring
Corlan countertopsQuartz countertops
Custom wood cabinetsSoft-close custom wood cabinetry
GE or comparable appliancesUpgraded appliance package (Bosch or comparable)
30-amp electrical panel50-amp electrical panel
Standard lighting packageUpgraded LED strip lighting and accent lighting throughout
Dual head mini split (heat and AC)Upgraded mini split system
Shower insertCustom tile shower with niche
Sliding primary doorCollapsible primary door
—Wood burning stove
—Outdoor shower

Included vs. Not Included
Included with Every Home
- Full architectural plans
- Engineering certification
- All interior finishes installed
- Appliance package (range, refrigerator, microwave, dishwasher)
- Full bathroom with tub/shower combo
- Full electrical and plumbing
- HVAC system (dual-zone)
- Smoke/CO detectors
- Two bedrooms with closets
Not Included (Owner Responsibility)
- Land or site preparation
- Foundation (quoted separately)
- Utility connections (water, sewer, electric)
- Permits (we assist with the process)
- Delivery (calculated based on distance)
- Washer/dryer (available as add-on)